Progettazione architettonica, efficientamento energetico,

bioedilizia,

consulenze, restauri,  ristrutturazioni, gestione commesse

Infanti arch. Matteo Partita IVA 03586410270

Bifamiliare in stile

tradizionale

Traditional bicks & concrete

Home Project;

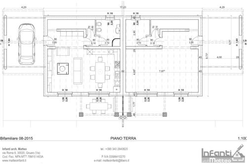
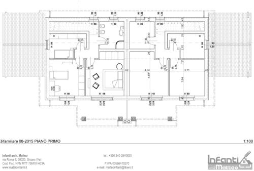
Progetto di una casa bifamigliare con tre camere Il progetto rivisita una casa già costruita in chiave bifamiliare. Soggiorno con ingresso, cucina pranzo e servizio igienico, trovano spazio al piano terra. Il primo piano ospita tre camere ed un bagno. L'ampio loggiato, protegge lo spazio esterno alla cucina per sfruttare il caminetto- cottura esterno durante la bella stagione. A protezione del'ingresso troviamo una comoda copertura che svolge anche la funzione di ricovero auto.