Progettazione architettonica, efficientamento energetico,

bioedilizia,

consulenze, restauri,  ristrutturazioni, gestione commesse

Infanti arch. Matteo Partita IVA 03586410270

Casa Modulare

“Lego”

Prefab Custom Home Project;

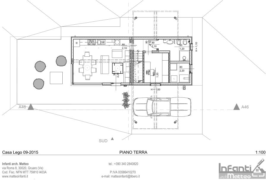
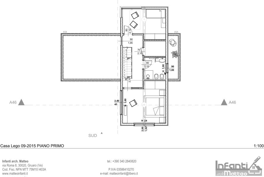
Progetto-studio di una casa unimigliare con tre camere, sulla tematica delle case prefabbricate modulari; Il progetto di questa particolare abitazione, è completamente modulare su due piani. I quattro moduli che compongono il piano primo e i 4 del piano terra, sono stivabili in un euro-camion. Questo consente di produrre i singoli moduli interamente in stabilimento, contribuendo a contenere i costi. In cantiere poi, si completerà la casa nelle sue finiture definitive;
GSPublisherEngine 0.16.100.100 Infanti arch. Matteo                                                                                                    tel.: +390 340 2840820 via Roma 8, 30020, Gruaro (Ve) Cod. Fisc. NFN MTT 75M10 I403A                                                                               P.IVA 03586410270 www.matteoinfanti.it                                                                                            e-mail: matteoinfanti@libero.it  14 x 20 = 2,82 1 2 3 4 5 6 7 8 9 10 11 12 13 90 1,95 H  1,60 45 2,40 H  24 1,92 5 2,00 H  1,00 1,00 90 80 2,10 2,10 70 80 2,10 80 2,10 A46 A46 SUD Casa Lego 09-2015 PIANO PRIMO 1:100 GSPublisherEngine 0.16.100.100 Infanti arch. Matteo                                                                                                    tel.: +390 340 2840820 via Roma 8, 30020, Gruaro (Ve) Cod. Fisc. NFN MTT 75M10 I403A                                                                               P.IVA 03586410270 www.matteoinfanti.it                                                                                            e-mail: matteoinfanti@libero.it  14 x 20 = 2,82 1 2 3 4 5 6 7 8 9 10 11 12 13 90 2,20 H = 1,10 1,20 60 H = 1,00 96 5 1,20 2,20 80 2,10 80 80 2,10 2,10 80 L h = 6,59 m Ser.h = 0,33 m F.h = 1,20 m A46 A46 SUD Casa Lego 09-2015 PIANO TERRA 1:100