Progettazione architettonica, efficientamento energetico,
bioedilizia,
consulenze, restauri, ristrutturazioni, gestione commesse
Infanti arch. Matteo Partita IVA 03586410270
Casa a tronchi
“Log-House”
Questa tipologia costruttiva,
risalente a moltissimi anni fà,
appartiene alla cultura mittel
europea. Successivamente è
stata “esportata” nelle americhe,
dove è tutt’ora frequentemente
impiegata nelle zone più fredde.
E’ molto diretta ed
istintiva…nonchè duratura nel
tempo.
Upper Canada Village, 1820’s Log
House
I tronchi di grossi alberi, vengono
tagliati direttamente nel luogo di
costruzione della casa. Creando
degli incastri sulle teste, essi
vengono poi montati l‘uno sopra
l’altro fino ad ottenere un vero e
proprio muro.
Il progetto contemporaneo con
la tecnologia “log house” , tiene
conto delle esigenze di
isolamento applicandovi un
cappotto termico interno.
Le moderne tecniche costruttive,
permettono maggiori libertà
compositive rispetto ai sistemi
log house tradizionali.
In questo particolare esempio di
studio, viene pensato un cottage
con approdo barca, posizionato
a cavallo tra le acque di un fiume
e la terra ferma. Una serie di
pilastri, sosdtengono la
costruzione sopra il livello del
terreneo umido e paludoso,
garantendo la salubrità degli
ambienti.
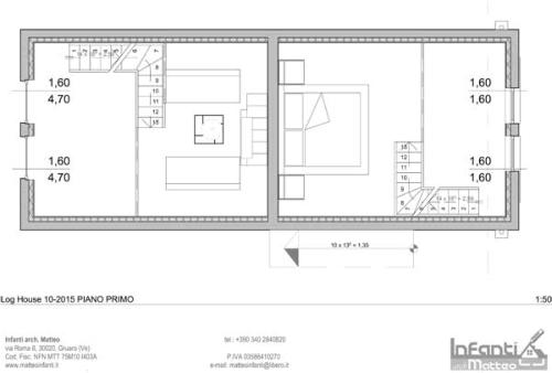
Il piano terra, prevede una sala
pranzo-cucina con affaccio sul
molo. Una semplice scaletta,
prota al soppalco dove viene
collocato un intimi salottino con
tv. Attraverso un disimpegno, si
accede al bagno/centrale termica
ed al piano terra della camera. Il
letto, si trova in un secondo
soppalco sottotetto,
raggiungibile salendo una pratica
scaletta.