Progettazione architettonica, efficientamento energetico,

bioedilizia,

consulenze, restauri,  ristrutturazioni, gestione commesse

Infanti arch. Matteo Partita IVA 03586410270

Progetto di

allestimento negozio

di telefonia

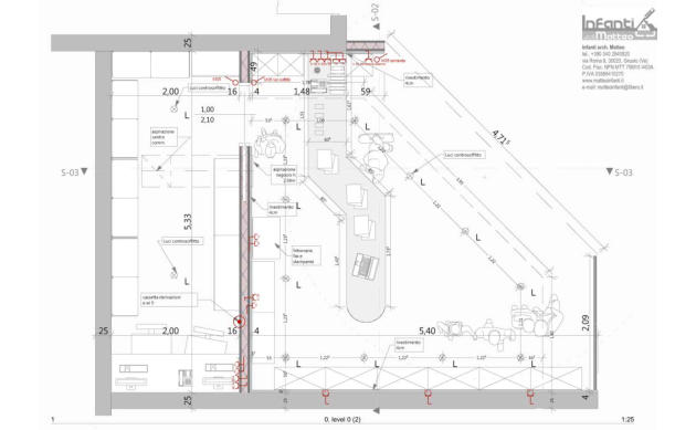
Progetto di allestimento di un negozio per vendita ed assistenza telefoni e tablet. Livello di progettazione “esecutiva di cantiere”. Manufatti in corso di allestimento.